Révéler le potentiel de votre intérieur sans agrandir

Repenser l’agencement, optimiser chaque mètre carré et créer un intérieur fonctionnel, harmonieux et adapté à votre quotidien.

Optimiser son intérieur sans travaux : gagnez de l’espace et du confort

 

Dans ce projet, les clients souhaitaient valoriser leur maison en repensant l’organisation de l’espace cuisine, notamment en agrandissant l’arrière-cuisine.

Les surfaces étaient correctes mais mal exploitées, avec une salle de bain surdimensionnée par rapport à leurs besoins. Je suis intervenue ici sur un travail d’implantation et d’optimisation des espaces, davantage que sur la décoration.

J’ai proposé trois plans d’aménagement différents afin d’adapter le projet aux envies et au budget des clients.

Pour gagner de l’espace, nous avons supprimé la baignoire afin de repenser la répartition des volumes et créer une arrière-cuisine plus grande et fonctionnelle. Ce nouvel espace permet de désencombrer la cuisine en intégrant les électroménagers et rangements auparavant visibles.

L’ancienne cuisine et ses éléments ont été entièrement déposés afin de repartir sur une base saine et cohérente, avec une restructuration complète des cloisons.

Au final, le projet aboutit à une cuisine intemporelle, associant un bois clair chaleureux à un plan de travail en céramique, pour un rendu à la fois fonctionnel, esthétique et durable.

cuisine après renovation

Avant optimisation des espaces

cuisine avant renovation1
cuisine avant renovation2
salle de bain avant renovation1.jpeg
placard avant renovation.jpeg

Projection et visuels d’aménagement intérieur

salle de bain2
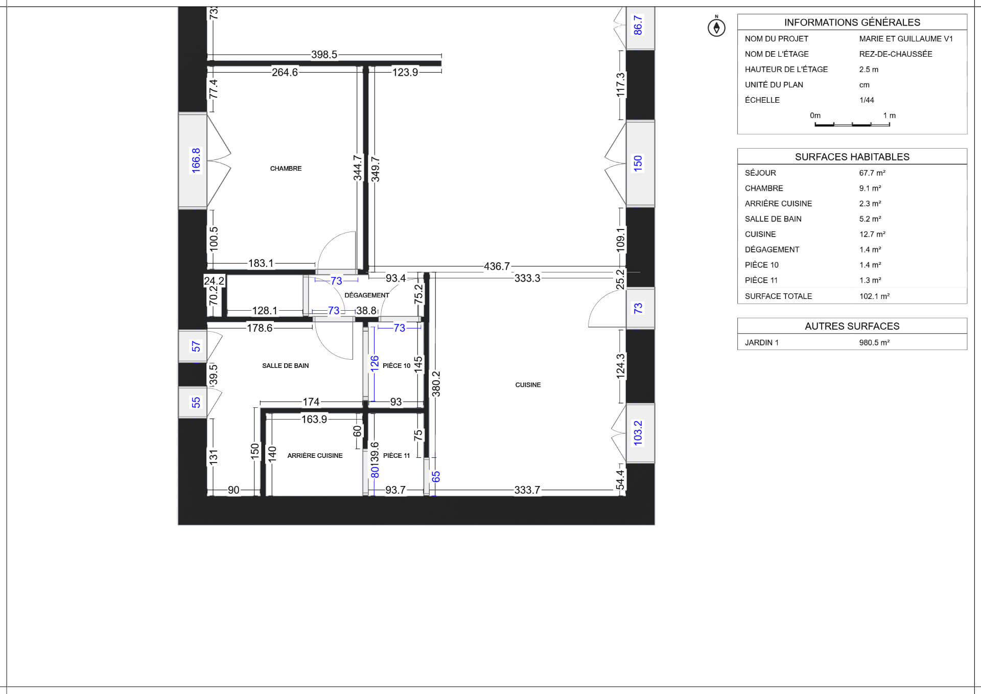
plan coté

Après aménagement et transformation

cuisine après renovation1
nouvel ilot
cuisine après renovation
création arriere cuisine
salle d'eau après renovation
image cuisine apres renovation